首页
光伏安装图纸变量表怎么看
返回

光伏安装图纸变量表怎么看

2023-11-27 综合百科 By:佚名
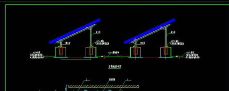
最佳答案1、图纸中会标注出各个部件的尺寸,一般是用毫米或英寸表示。尺寸标注可以帮助制造商确定材料的大小和数量。2、图纸中会标注出产品的结构,包括各个部件之间的连接方式和装配顺序。这些信息可以帮助制造商组装产品并确保其正常运行。3、图纸中会标注出各个部件使用的材料,包括金属、塑料、玻璃等。...

1、图纸中会标注出各个部件的尺寸,一般是用毫米或英寸表示。尺寸标注可以帮助制造商确定材料的大小和数量。

2、图纸中会标注出产品的结构,包括各个部件之间的连接方式和装配顺序。这些信息可以帮助制造商组装产品并确保其正常运行。

3、图纸中会标注出各个部件使用的材料,包括金属、塑料、玻璃等。这些信息可以帮助制造商选择正确的材料并确保产品的质量。

4、图纸中会标注出产品的组件,包括电池板、逆变器、电缆等。这些信息可以帮助制造商选择正确的组件并确保产品的性能。

猜你喜欢
山西太原新华电脑学校有几个专业

山西太原新华电脑学校有几个专业

10-31 0 阅读
舌尖上的西昌市(凉山州西昌市小吃美食介绍)

舌尖上的西昌市(凉山州西昌市小吃美食介绍)

12-31 0 阅读
竞舞台app(竞舞台下载)

竞舞台app(竞舞台下载)

01-04 0 阅读
格力空调6位通用密码

格力空调6位通用密码

07-22 0 阅读
支付宝亲属卡怎么关闭

支付宝亲属卡怎么关闭

07-22 0 阅读
工会吊唁可以报销差旅费吗

工会吊唁可以报销差旅费吗

11-29 0 阅读
热门推荐
超级玛利奥(关于超级玛利奥的基本详情介绍)

超级玛利奥(关于超级玛利奥的基本详情介绍)

01-01 0 阅读
小黄车密码锁破解

小黄车密码锁破解

12-03 0 阅读
新编实用英汉互译教程 上(关于新编实用英汉互译教程 上的简介)

新编实用英汉互译教程 上(关于新编实用英汉互译教程 上的简介)

01-01 0 阅读
1916香烟(关于1916香烟的基本详情介绍)

1916香烟(关于1916香烟的基本详情介绍)

01-02 0 阅读
景亭(关于景亭的简介)

景亭(关于景亭的简介)

12-31 0 阅读
冰峰和北冰洋哪个厂家对经销商的扶持力度比较大?

冰峰和北冰洋哪个厂家对经销商的扶持力度比较大?

11-01 0 阅读
曹县吉顺机动车检测有限公司(关于曹县吉顺机动车检测有限公司的简介)

曹县吉顺机动车检测有限公司(关于曹县吉顺机动车检测有限公司的简介)

12-31 0 阅读
肝功能异常的症状有哪些肝功能异常就是肝病吗(肝功能异常是什么疾病)

肝功能异常的症状有哪些肝功能异常就是肝病吗(肝功能异常是什么疾病)

01-03 0 阅读
李晓琪(关于李晓琪的简介)

李晓琪(关于李晓琪的简介)

12-31 0 阅读
有什么价格便宜,又漂亮的车

有什么价格便宜,又漂亮的车

12-11 0 阅读